Diseña tu proyecto

Terreno en venta en Marchamalo

Descripción

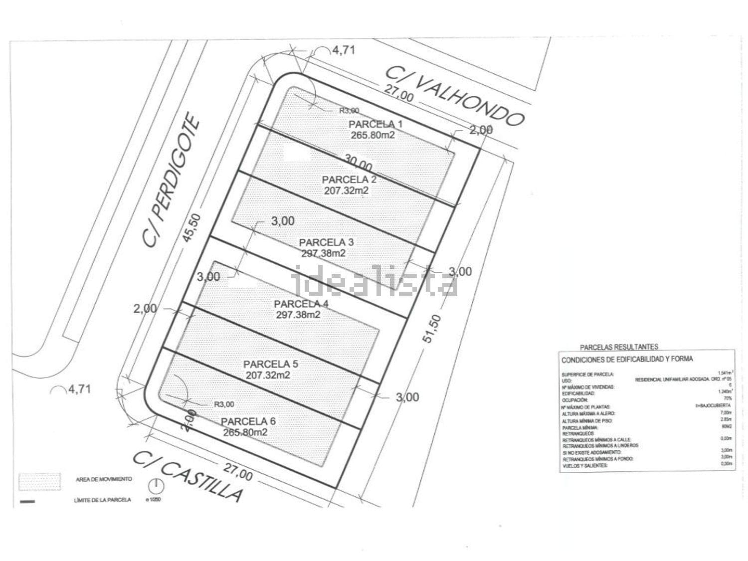
Venta de Parcelas en Marchamalo. Situadas enfrente del Instituto.
Disponemos de 6 Parcelas desde 207,32 m² a 297,37 m².
4 Adosadas de Esquina y 2 Adosadas.

Precio: 190€/m² + IVA.

Solicite más información sin compromiso.

Precio
39.390 €
Características
Contacto